Wohnungsliste
Hier finden Sie alle Wohnungen auf einen Blick. Klicken Sie auf eine der Tabellenüberschriften, um die Wohnungsliste zu sortieren.
| Haus | Etage | Nr. Absteigend sortieren | qm | Orientierung | Barrierefreiheit | Zimmer | EDIT | ||
|---|---|---|---|---|---|---|---|---|---|
| A | EG | 1001 | 64.00 | 2-Zimmer-Eckwohnung | frei | Südost | DIN 18040-2 | R-Standard mit Einschränkungen | Tragenaufzug | 2 Zimmer | |
| C | EG | 1002 | 62.00 | 2-Zimmer-Eckwohnung | frei | Südost | DIN 18040-2 | Kein R-Standard | 2 Zimmer | |
| D | EG | 1003 | 39.00 | 1-Zimmer-Wohnung | frei | Süd | DIN 18040-2 | Kein R-Standard | 1 Zimmer | |
| D | EG | 1004 | 42.00 | 1-Zimmer-Eckwohnung | frei | Nordwest | DIN 18040-2 | Kein R-Standard | 1 Zimmer | |
| D | EG | 1005 | 62.00 | 2-Zimmer-Eckwohnung | frei | Südost | DIN 18040-2 | Kein R-Standard | 2 Zimmer | |
| D | EG | 1006 | 62.00 | 2-Zimmer-Eckwohnung | frei | Nordost | DIN 18040-2 | Kein R-Standard | 2 Zimmer | |
| A | 1 | 1101 | 65.00 | 2-Zimmer-Eckwohnung | frei | Südost | DIN 18040-2 | R-Standard mit Einschränkungen | Tragenaufzug | 2 Zimmer | |
| A | 1 | 1102 | 65.00 | 2-Zimmer-Eckwohnung | frei | Südost | DIN 18040-2 | R-Standard mit Einschränkungen | Tragenaufzug | 2 Zimmer | |
| A | 1 | 1103 | 65.00 | 2-Zimmer-Eckwohnung | frei | Südwest | DIN 18040-2 | R-Standard mit Einschränkungen | Tragenaufzug | 2 Zimmer | |
| A | 1 | 1104 | 65.00 | 2-Zimmer-Eckwohnung | frei | Nordwest | DIN 18040-2 | R-Standard mit Einschränkungen | Tragenaufzug | 2 Zimmer | |
| C | 1 | 1105 | 62.00 | 2-Zimmer-Eckwohnung | frei | Südwest | DIN 18040-2 | Kein R-Standard | 2 Zimmer | |
| C | 1 | 1106 | 62.00 | 2-Zimmer-Eckwohnung | frei | Nordwest | DIN 18040-2 | Kein R-Standard | 2 Zimmer | |
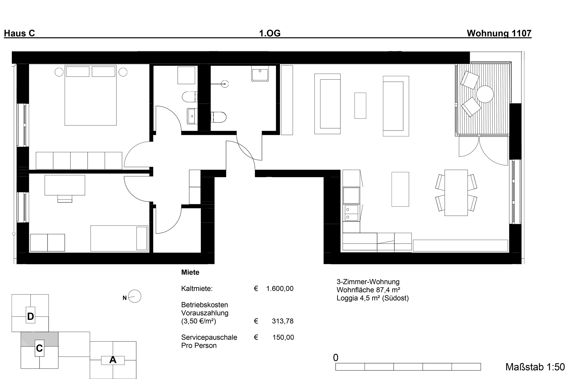
| C | 1 | 1107 | 87.00 | 3-Zimmer-Wohnung | frei | Südost | DIN 18040-2 | Kein R-Standard | 3 Zimmer | |
| D | 1 | 1108 | 62.00 | 2-Zimmer-Eckwohnung | frei | Nordost | DIN 18040-2 | Kein R-Standard | 2 Zimmer | |
| D | 1 | 1109 | 62.00 | 2-Zimmer-Eckwohnung | frei | Südost | DIN 18040-2 | Kein R-Standard | 2 Zimmer | |
| D | 1 | 1110 | 87.00 | 3-Zimmer-Wohnung | frei | Nordwest | DIN 18040-2 | Kein R-Standard | 3 Zimmer | |
| A | 2 | 1201 | 65.00 | 2-Zimmer-Wohnung | frei | Nordost | DIN 18040-2 | R-Standard mit Einschränkungen | Tragenaufzug | 2 Zimmer | |
| A | 2 | 1202 | 65.00 | 2-Zimmer-Wohnung | frei | Südost | DIN 18040-2 | R-Standard mit Einschränkungen | Tragenaufzug | 2 Zimmer | |
| A | 2 | 1203 | 65.00 | 2-Zimmer-Wohnung | frei | Südwest | DIN 18040-2 | R-Standard mit Einschränkungen | Tragenaufzug | 2 Zimmer | |
| A | 2 | 1204 | 65.00 | 2-Zimmer-Wohnung | frei | Nordwest | DIN 18040-2 | Kein R-Standard | 2 Zimmer | |
| C | 2 | 1205 | 62.00 | 2-Zimmer-Wohnung | frei | Südwest | DIN 18040-2 | Kein R-Standard | 2 Zimmer | |
| C | 2 | 1206 | 62.00 | 2-Zimmer-Wohnung | frei | Nordwest | DIN 18040-2 | Kein R-Standard | 2 Zimmer | |
| C | 2 | 1207 | 87.00 | 3-Zimmer-Wohnung | frei | Südost | DIN 18040-2 | Kein R-Standard | 3 Zimmer | |
| D | 2 | 1208 | 62.00 | 2-Zimmer-Wohnung | frei | Nordost | DIN 18040-2 | Kein R-Standard | 2 Zimmer | |
| D | 2 | 1209 | 62.00 | 2-Zimmer-Wohnung | frei | Südost | DIN 18040-2 | Kein R-Standard | 2 Zimmer | |
| D | 2 | 1210 | 87.00 | 3-Zimmer-Wohnung | frei | Nordwest | DIN 18040-2 | Kein R-Standard | 3 Zimmer | |
| A | 3 | 1301 | 65.00 | 2-Zimmer-Wohnung | frei | Nordost | DIN 18040-2 | R-Standard mit Einschränkungen | Tragenaufzug | 2 Zimmer | |
| A | 3 | 1302 | 65.00 | 2-Zimmer-Wohnung | frei | Südost | DIN 18040-2 | R-Standard mit Einschränkungen | Tragenaufzug | 2 Zimmer | |
| A | 3 | 1303 | 65.00 | 2-Zimmer-Wohnung | frei | Südwest | DIN 18040-2 | R-Standard mit Einschränkungen | Tragenaufzug | 2 Zimmer | |
| A | 3 | 1304 | 65.00 | 2-Zimmer-Wohnung | frei | Nordwest | DIN 18040-2 | R-Standard mit Einschränkungen | Tragenaufzug | 2 Zimmer | |
| C | 3 | 1305 | 62.00 | 2-Zimmer-Wohnung | frei | Südwest | DIN 18040-2 | Kein R-Standard | 2 Zimmer | |
| C | 3 | 1306 | 62.00 | 2-Zimmer-Wohnung | frei | Nordwest | DIN 18040-2 | Kein R-Standard | 2 Zimmer | |
| C | 3 | 1307 | 87.00 | 3-Zimmer-Wohnung | frei | Südost | DIN 18040-2 | Kein R-Standard | 3 Zimmer | |
| D | 3 | 1308 | 62.00 | 2-Zimmer-Wohnung | frei | Nordost | DIN 18040-2 | Kein R-Standard | 2 Zimmer | |
| D | 3 | 1309 | 62.00 | 2-Zimmer-Wohnung | frei | Südost | DIN 18040-2 | Kein R-Standard | 2 Zimmer | |
| D | 3 | 1310 | 87.00 | 3-Zimmer-Wohnung | frei | Nordwest | DIN 18040-2 | R-Standard mit Einschränkungen | Tragenaufzug | 3 Zimmer | |
| A | DG | 1401 | 70.00 | 2-Zimmer-Penthouse | frei | Südwestost | DIN 18040-2 | Kein R-Standard | Tragenaufzug | 2 Zimmer | |
| A | DG | 1402 | 70.00 | 2-Zimmer-Penthouse | frei | Nordwestost | DIN 18040-2 | Kein R-Standard | Tragenaufzug | 2 Zimmer | |
| C | DG | 1403 | 67.00 | 2-Zimmer-Penthouse | frei | Nordwestsüd | DIN 18040-2 | Kein R-Standard | 2 Zimmer | |
| C | DG | 1404 | 63.00 | 2-Zimmer-Penthouse | frei | Nordsüd | DIN 18040-2 | Kein R-Standard | 2 Zimmer | |
| D | DG | 1405 | 67.00 | 2-Zimmer-Penthouse | frei | Südwestost | DIN 18040-2 | Kein R-Standard | 2 Zimmer | |
| D | DG | 1406 | 63.00 | 2-Zimmer-Penthouse | frei | Nordwestost | DIN 18040-2 | Kein R-Standard | 2 Zimmer |
